Property Documents
Home Report.pdf
✕
1149 Dowland Crescent
gallery
overview
floor plans
videos
map
Contact
Menu
Documents
Contact
1149 Dowland Crescent
Burlington, Ontario L7T 4C7
Offered at
$
Gallery
View 50 Photos
Contact
Overview
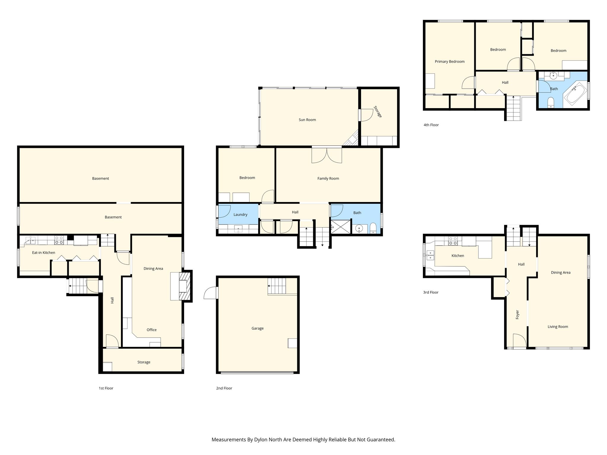
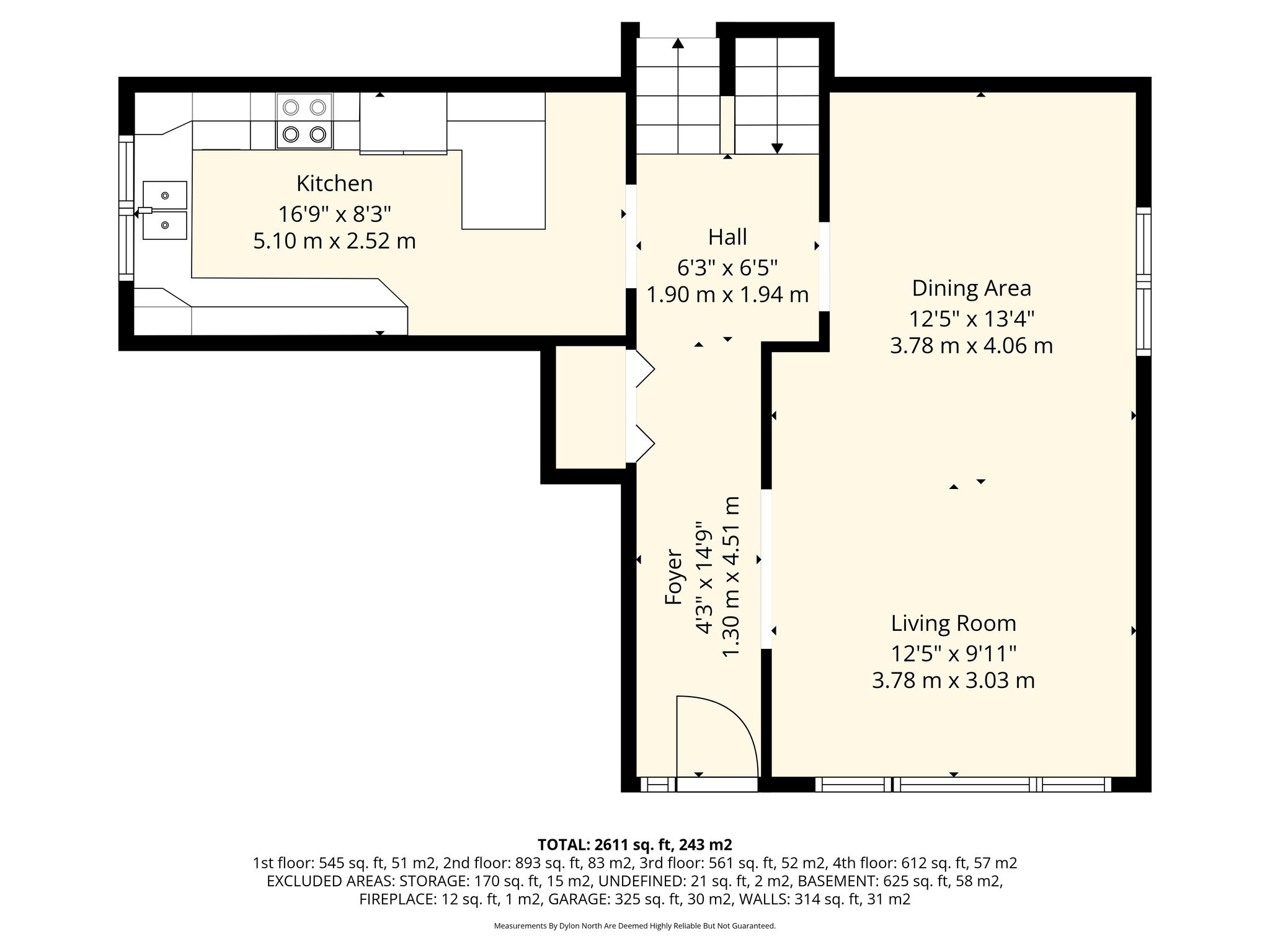
Floor Plans
Videos
1149 Dowland Crescent, Burlington, ON
Presented by
Julia Fedak
Sales Representative
Re/Max Escarpment Realty
(289) 260-9404
juliafedak@yahoo.com
Website
Get in touch
First Name*
Last name*
Phone number*
Email address*
Your message*
Send Message
Thank you!
Your message is sent.
We will be in touch with you soon.
Excellent
Location